Las obras del colegio de Infantil y Primara La Almadraba de Alicante están listas para su licitación tras ser fiscalizado el expediente de contratación de obras, según ha informado hoy la conselleria de Educación. El proyecto, incluido en las actuaciones de ejecución directa por la consellería, cuenta con un presupuesto 14.143.184,79 millones de euros y el plazo de ejecución es de 20 meses. El centro albergará a 735 alumnos de infantil y primaria en tres líneas, es decir, tres aulas por curso académico.
El proyecto básico de este centro educativo se aprobó en marzo de 2023 pero el Ayuntamiento de Alicante tuvo que subsanar una serie de incidencias que finalizaron en noviembre de 2023. En enero de 2024 se recibió el informe favorable del proyecto arqueológico de la Dirección Territorial de Cultura y ese mismo mes se aprobó la licencia de obras y el proyecto de ejecución.
La concejala de Educación, Mari Carmen de España, ha celebrado hoy que se haya dado “un nuevo e importante paso para la construcción del CEIP La Almadraba, un centro muy necesario y demandado que supondrá un gran alivio desde el punto educativo para la zona de playas”. Asimismo, ha agradecido “la diligencia en la tramitación de este expediente por parte del Consell que dirige Carlos Mazón y, en concreto, de la conselleria de Educación de José Antonio Rovira”.
Nuevo colegio en La Condomina
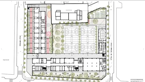
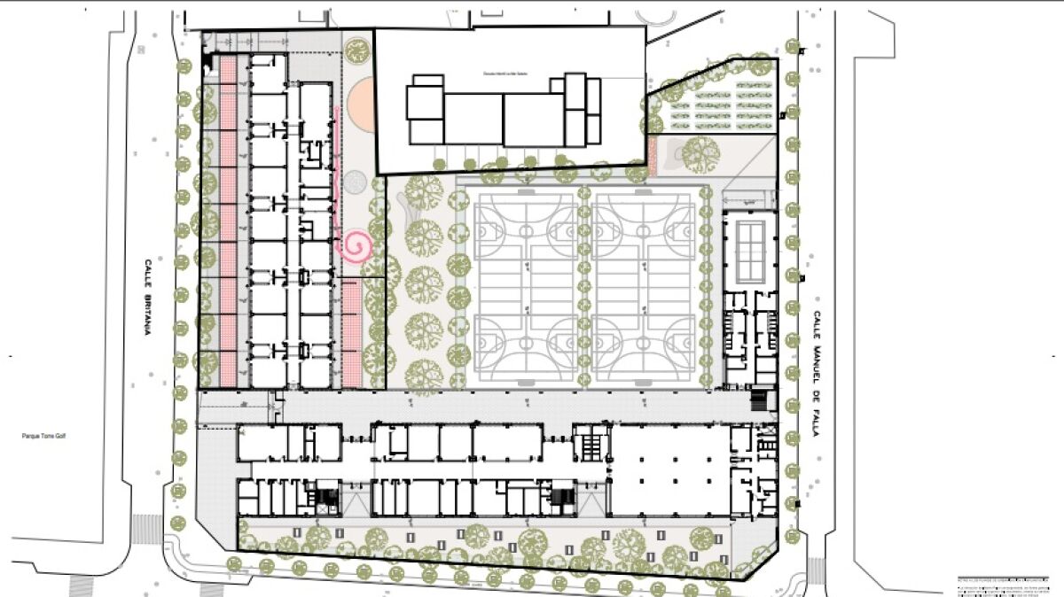
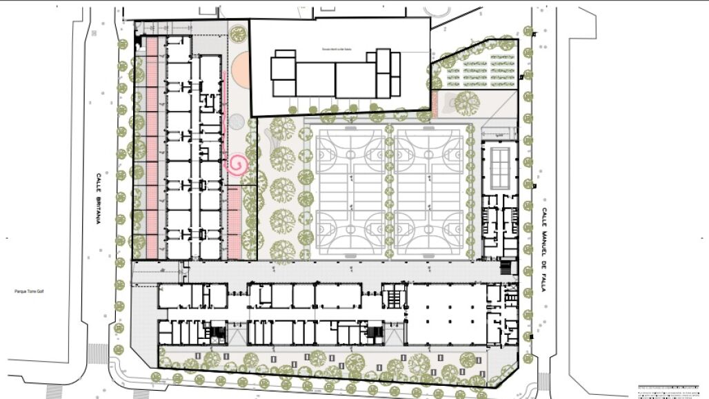
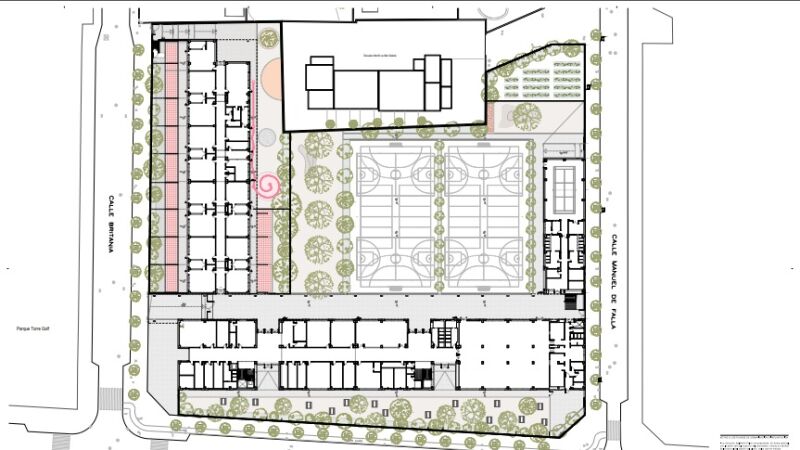
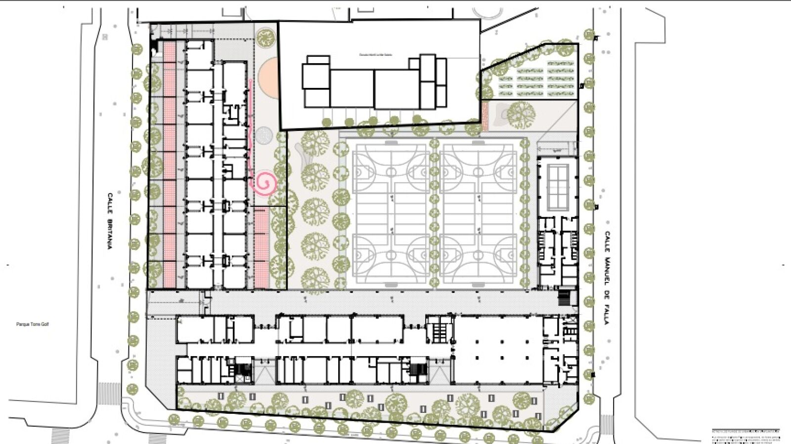
El CEIP La almadraba se levantará en una parcela de 12.268 metros cuadrados situada en la zona de La Condomina, entre las calles Britania, Enric Valor y Manuel Azaña. La superficie construida será de 7.016 metros cuadrados y estará dotado de tres aulas de infantil en el ciclo de 0 a 2 años, otras nueve para educación infantil en el ciclo de 3 a 5 años y 18 aulas más para educación primaria. En total, tendrá capacidad para acoger a 735 alumnos. Dispondrá de un comedor con 600 plazas.
El centro educativo contará con tres edificios conectados entre sí a través de techados en su primera planta, dedicados a educación infantil, primaria y gimnasio. También contará con zonas de juego y y de recreo diferenciadas y pistas deportivas exteriores.
El edificio que da a la calle Britania, de una sola planta, acogerá las aulas, baños, despachos, almacenes y espacios comunes de educación infantil. El segundo edificio, con fachada a la calle Enric Valor, albergará las aulas de educación primaria, así como los despachos, zonas comunes y el comedor del centro. Este bloque tendrá dos plantas.
Por último, en el edificio más próximo a la calle Manuel Azaña se ubicará el gimnasio, con sus baños y vestuarios, sobre el que también está previsto ubicar aulas de Primaria. En el espacio central situado entre los tres edificios se habilitarán zonas de juego para las distintas etapas escolares y se situarán pistas deportivas exteriores.

