La Junta de Gobierno Local del Ayuntamiento de Santa Pola ha aprobado iniciar el expediente para contratar las obras del proyecto de ampliación del cementerio nuevo, que es una actuación que tiene como objetivo principal garantizar la disponibilidad de unidades de enterramiento y mejorar la urbanización del recinto funerario.
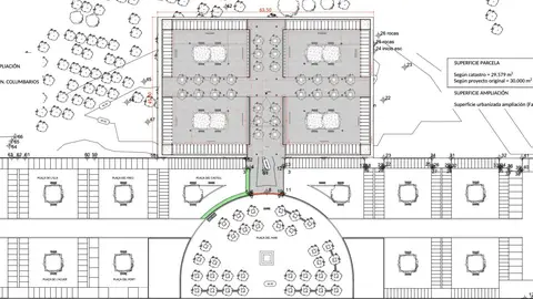
El cementerio nuevo del municipio santapolero está localizado en la partida Valverde Bajo. La ampliación se va a centrar en una zona de expansión colindante en su parte noroeste a las fases ya ejecutadas, lo que supone una nueva superficie de 2.742 metros cuadrados en el espacio global del complejo de unos 30.000 m2.
Con una inversión de más de 979.000 euros se van a crear 544 nuevos nichos y 1.296 columbarios, asegurando con ello la cobertura de las necesidades del municipio santapolero para los próximos años.
Además, un nuevo pasillo de tránsito conectará las cuatro plazas en las que se construirán esos nichos con el cementerio existente.
Consultorio sanitario de Gran Alacant
Por otro lado, el pleno municipal del Ayuntamiento de Santa ha aprobado por unanimidad el compromiso de dotar de calificación de uso asistencial sanitario la parcela en de Gran Alacant en la que se ha proyectado la construcción de un nuevo consultorio en esa zona.
Toda vez que se ha dado ese paso, la Conselleria de Sanidad puede aprobar la cesión de competencias al consistorio santapolero para construir el consultorio médico de Gran Alacant.
El acuerdo se ha adoptado en un pleno municipal extraordinario celebrado este pasado jueves para ello.

